+420 721 626 198

info@thermowooddomy.cz

Piletická 486, Věkoše, 503 41 Hradec Králové

+420 721 626 198

info@thermowooddomy.cz

Sammy 6

Sammy 6 je kompaktní zahradní chata z masivního dřeva , dřevěná konstrukce o síle 70×135 mm, navržená jako ideální místo pro odpočinek, práci i krátkodobé ubytování. Díky jednoduchému a praktickému půdorysu nabízí dvě samostatné místnosti, které lze využít jako hlavní obytný prostor a ložnici, pracovnu nebo relaxační zónu. Konstrukce z kvalitního smrkového dřeva o tloušťce 70 mm zajišťuje dlouhou životnost a přirozený vzhled, který skvěle zapadne do jakéhokoliv prostředí.

Chata je ideální jako:
• zahradní chata
• víkendové útočiště
• letní obývací pokoj na zahradě
• místo pro relax, hobby či práci

Dispozice objektu umožňuje jasné oddělení denní a klidové části, což zvyšuje komfort při pobytu i přenocování.

⚠️ Cena zahrnuje stavebnici. Montáž není v ceně.
Montáž je možná svépomocí nebo prostřednictvím naší firmy.


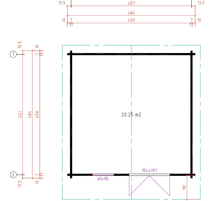
Dispozice a velikosti místností

• Hlavní místnost: 20,25 m²

Celková plocha: 20,25 m²
Vnější rozměry stavby: 4,50×4,50m

Dispozice je velmi jednoduchá a praktická – větší místnost je ideální pro posezení, kuchyňský kout nebo společný prostor, menší místnost pak slouží jako ložnice, pracovna nebo úložný prostor.


Pro koho je Sammy 6 ideální?

✅ pro jednotlivce
✅ pro pár
✅ pro víkendové využití
✅ jako zahradní útočiště
✅ jako ateliér, hobby místnost nebo klidová zóna

Optimální kapacita: 2–4 osoby (dle vybavení a způsobu využití)


Konstrukce a dodání

Chata je dodávána jako přesně připravená dřevěná stavebnice z kvalitního smrkového masivu (50 mm).

Stavebnice obsahuje:

  • masivní stěnové profily o síle konstrukce v popisu výše
  • zateplenou střešní konstrukci
  • izolovaný strop ( u více podlažních srubů )
  • zateplenou dřevěnou konstrukci podlahy
  • kvalitní dřevěná okna s dvojsklem IV68
  • dveře dřevěné, rezidenční
  • střešní krytina – bitumenová šindel
  • spojovací materiál
  • technickou dokumentaci
  • montážní návod

⚠️ Cena zahrnuje stavebnici. Montáž není v ceně.
Montáž je možná svépomocí nebo prostřednictvím naší firmy.


Hlavní výhody modelu Sammy 6

✅ Nadčasový design
✅ Přírodní masivní dřevo
✅ Dvě samostatné místnosti
✅ Univerzální využití
✅ Rychlá a jednoduchá montáž
✅ Skvělý poměr velikost / cena
✅ Ideální doplněk každé zahrady

Rychlý kontakt

    Telefon

    +420 721 626 198

    Email

    info@thermowooddomy.cz