Cena stavebnice dle specifikace, včetně dopravy na místo v ČR a DPH : 589 000,- Kč
Raul 70 je kompaktní zahradní chata z masivního dřeva konstrukce o síle 70×135 mm, navržená jako ideální místo pro odpočinek, práci i setkávání s rodinou nebo přáteli. Díky jednoduchému a funkčnímu půdorysu nabízí příjemný otevřený prostor doplněný o krytou verandu, která rozšiřuje obytnou plochu a propojuje interiér se zahradou. Konstrukce z kvalitního smrkového dřeva o tloušťce 70 mm zajišťuje dlouhou životnost a přirozený vzhled, který skvěle zapadne do jakéhokoliv prostředí.
Chata je ideální jako:
• zahradní chata
• víkendové útočiště
• letní obývací pokoj na zahradě
• místo pro relax, hobby či práci
Dominantou objektu je hlavní obytný prostor, na který plynule navazuje krytá veranda vhodná pro posezení, grilování nebo letní stolování.
⚠️ Cena zahrnuje stavebnici. Montáž není v ceně.
Montáž je možná svépomocí nebo prostřednictvím naší firmy.
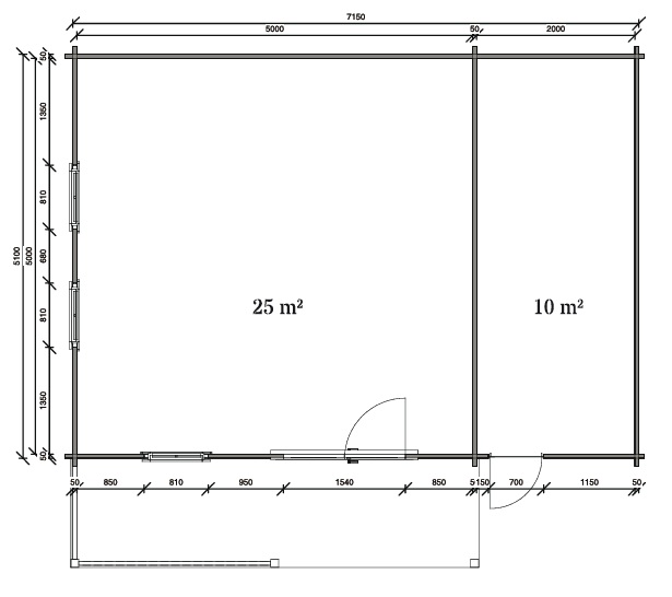
Dispozice a velikosti místností
• Hlavní místnost: 25 m²
• Druhá místnost: 10 m²
Celková plocha: 35 m²
Vnější rozměry stavby: 7,15 × 5,10 m
Dispozice je velmi jednoduchá a praktická – otevřený hlavní prostor umožňuje libovolné využití (posezení, kuchyňský kout, pracovní zóna, relax něco ve stylu lounge) a veranda slouží jako přirozené rozšíření obytného prostoru do exteriéru.
Pro koho je Raul 35 ideální?
✅ pro jednotlivce
✅ pro pár
✅ pro víkendové využití
✅ jako zahradní útočiště pro rodinu a přátele
✅ jako ateliér, hobby místnost nebo relax zóna
Optimální kapacita: 2–6 osob (dle vybavení a způsobu využití)
Konstrukce a dodání
Chata je dodávána jako přesně připravená dřevěná stavebnice z kvalitního smrkového masivu (70mm).
Stavebnice obsahuje:
- masivní stěnové profily o síle konstrukce v popisu výše
- zateplenou střešní konstrukci
- izolovaný strop ( u více podlažních srubů )
- zateplenou dřevěnou konstrukci podlahy
- střešní krytina – bitumenová šindel
- spojovací materiál
- technickou dokumentaci
- montážní návod
⚠️ Cena zahrnuje stavebnici. Montáž není v ceně.
Montáž je možná svépomocí nebo prostřednictvím naší firmy.
Hlavní výhody modelu Raul 35
✅ Nadčasový design
✅ Přírodní masivní dřevo
✅ Krytá veranda 10 m²
✅ Univerzální využití
✅ Rychlá a jednoduchá montáž
✅ Skvělý poměr velikost / cena
✅ Ideální doplněk každé zahrady


