Cena stavebnice dle specifikace, včetně dopravy na místo v ČR a DPH : 1 260 000,- Kč
Mini Maria 35 je moderní přízemní dům z masivního dřeva s vnější stěnou CLT 110 mm s jednoduchou a funkční architekturou v nadčasovém stylu. Díky velkému prosklení v obytné části působí interiér velmi světlým a otevřeným dojmem a přirozeně se propojuje s krytou terasou, která rozšiřuje obytný prostor směrem do zahrady.
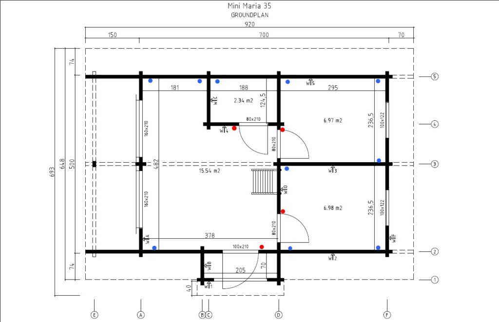
Dům je navržen jako kompaktní, ale velmi efektivně uspořádaný objekt s dostatkem místa pro rodinu i rekreační využití. Obytná místnost s kuchyňským koutem tvoří hlavní centrální prostor domu, ze kterého se vstupuje do dvou samostatných pokojů a koupelny. Dispozice je praktická, přehledná a nabízí dostatek soukromí i komfortu.
Konstrukce je tvořena masivními dřevěnými profily s přesným dílenským opracováním, které umožňuje rychlou a přesnou montáž.
⚠️ DŮLEŽITÉ: Cena zahrnuje stavebnici chaty. Chatu si zákazník montuje svépomocí nebo dle dohody naší montážní firmou. (není v ceně)
Dispozice a velikosti místností
Dispozice domu je rozdělena na společenskou část a klidovou zónu:
Celková obytná plocha s terasou : 47,9 m² + 14 m² loft
Obývací pokoj + kuchyně – 18,7 m²
Ložnice 1 – 7 m²
Ložnice 2 – 7 m²
Koupelna – 2,7 m²
Loft se dvěmi ložnicemi – 14 m²
Krytá terasa – 7,5 m²
Dispozice je navržena tak, aby maximálně využívala každý metr čtvereční při zachování vzdušnosti a pohodlí.
Pro jakou rodinu je dům Mini Maria 35 ideální?
Model Mini Maria 35 je vhodný zejména pro:
✅ pár
✅ rodinu s 1–2 dětmi
✅ rekreační dům / chatu
✅ víkendové bydlení
✅ investiční objekt pro krátkodobý pronájem (Airbnb, Booking, atd.)
Optimální kapacita domu je 2–4 osoby (dle konkrétního využití a zařízení).
Konstrukce a dodávka stavebnice
Dům je dodáván jako přesně připravená dřevěná stavebnice z kvalitního severského dřeva.
Stavebnice obsahuje:
- masivní stěnové profily o síle konstrukce v popisu výše
- zateplenou střešní konstrukci
- izolovaný strop ( u více podlažních srubů )
- zateplenou dřevěnou konstrukci podlahy
- střešní krytina – bitumenová šindel
- spojovací materiál
- technickou dokumentaci
- montážní návod
👉 Montáž si zajišťuje zákazník sám nebo prostřednictvím naší montážní firmy. (není v ceně)
Hlavní výhody
✅ Nadčasový design
✅ Masivní dřevo – přírodní a ekologický materiál
✅ Velké prosklení
✅ Krytá terasa
✅ Praktická a efektivní dispozice
✅ Vhodné pro bydlení i investici









