+420 721 626 198

info@thermowooddomy.cz

Piletická 486, Věkoše, 503 41 Hradec Králové

+420 721 626 198

info@thermowooddomy.cz

Dřevník (Woodshed)

Dřevník (Woodshed) je praktický a robustní zahradní objekt z masivního smrkového dřeva o síle 70×135 mm, navržený pro efektivní uskladnění palivového dřeva a zahradního nářadí. Díky jednoduché, ale velmi funkční konstrukci nabízí kombinaci uzavřeného skladu a uzavřeného větraného prostoru pro dřevo, který zajišťuje přirozenou cirkulaci vzduchu a rychlé vysychání polen.

Masivní dřevěná konstrukce zajišťuje dlouhou životnost, vysokou stabilitu a přirozený vzhled, který skvěle zapadne do zahrady, na venkovní pozemek i k rekreačnímu domu.

Dřevník je ideální jako:
• sklad palivového dřeva
• zahradní sklad
• přístřešek pro nářadí
• technické zázemí k chatě nebo domu
• doplněk k sauně či venkovnímu posezení

Dispozice kombinuje uzavíratelný skladový prostor a větranou část pro dřevo, která umožňuje přehledné a bezpečné uskladnění většího množství paliva.

⚠️ Cena zahrnuje stavebnici. Montáž není v ceně.
Montáž je možná svépomocí nebo prostřednictvím naší firmy.


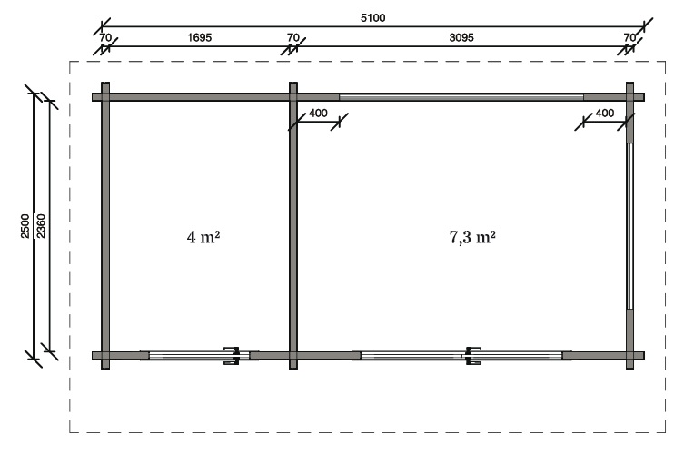
Dispozice a velikosti prostor

• Uzavřený sklad: 4 m²
• Větraný prostor pro dřevo: 7,3 m²

Celková plocha: 11,3 m²
Vnější rozměry stavby: cca 5,1 × 2,3 m

Dispozice je maximálně praktická – uzavřená část je vhodná pro nářadí, zahradní techniku nebo příslušenství ke krbu, zatímco otevřený prostor umožňuje efektivní skladování dřeva s dostatečnou ventilací.


Pro koho je Woodshed ideální?

✅ pro majitele krbu, kamen nebo pece
✅ pro rodinné domy a chaty
✅ pro zahradníky a chalupáře
✅ jako doplněk k saunám a venkovní kuchyni
✅ pro rekreační i celoroční objekty

Optimální využití: sklad dřeva a nářadí pro 1 domácnost / objekt


Konstrukce a dodání

Dřevník je dodáván jako přesně připravená dřevěná stavebnice z kvalitního smrkového masivu (70 mm).

Stavebnice obsahuje:

• masivní stěnové profily
• střešní konstrukci
• dřevěné dveře
• větrací konstrukci pro dřevo
• spojovací materiál
• technickou dokumentaci
• montážní návod

⚠️ Cena zahrnuje stavebnici. Montáž není v ceně.
Montáž je možná svépomocí nebo prostřednictvím naší firmy.


Hlavní výhody modelu Woodshed

✅ Masivní konstrukce 70 mm
✅ Dvě funkční zóny – sklad + dřevo
✅ Přirozené větrání dřeva
✅ Odolná a stabilní konstrukce
✅ Jednoduchý a čistý design
✅ Rychlá a snadná montáž
✅ Praktický doplněk ke každé zahradě

Rychlý kontakt

    Telefon

    +420 721 626 198

    Email

    info@thermowooddomy.cz