+420 721 626 198

info@thermowooddomy.cz

Piletická 486, Věkoše, 503 41 Hradec Králové

+420 721 626 198

info@thermowooddomy.cz

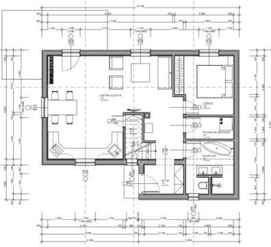
RD Mlynický dvůr