Varianta 1. – ZÁKLADNÍ VÝBAVA ( dokončeno z venčí )
Ceny vč. dopravy !
Cena bez DPH : 2 314 000,-Kč
Za tuto cenu dostanete :
Postavený modulový dům
- Dřevěný rám C24
- Izolace stěn z vlny 150 mm
- 200 mm zateplená podlaha
- 250 mm zateplená střecha
- Okna s trojitým zasklením U~ 0,6
- Dřevěná prkenná fasáda (barva dle vašeho výběru), nebo kovová dekorace na stěny
- Difúzní membránu
- OSB desku na podlaze
Varianta 2. – STANDARD ( dokončeno zvenčí i ze vnitř )
Cena bez DPH : 2 704 000,- Kč
Za tuto cenu dostanete :
Postavený modulový dům
- Dřevěný rám C24
- Izolace stěn z vlny 150 mm
- 200 mm zateplená podlaha
- 250 mm zateplená střecha
- Okna s trojitým zasklením U~ 0,6
- Dřevěná prkenná fasáda (barva dle vašeho výběru), nebo kovová dekorace na stěny
- Difúzní membránu
- OSB desku na podlaze
- Vinylová laminátová podlaha
- Vnitřní instalace (vodovodní potrubí, kanalizace, elektřina)
- Dřevěný interiérový obklad ( v barvě dle vašeho výběru )
- Osvětlení
Varianta 3. – NA KLÍČ ( s kuchyní, koupelnou a vytápěním )
Cena bez DPH : 3 074 000,- Kč
Za tuto cenu dostanete :
Postavený modulový dům
- Dřevěný rám C24
- Izolace stěn z vlny 150 mm
- 200 mm zateplená podlaha
- 250 mm zateplená střecha
- Okna s trojitým zasklením U~ 0,6
- Dřevěná prkenná fasáda (barva dle vašeho výběru), nebo kovová dekorace na stěny
- Difúzní membránu
- OSB desku na podlaze
- Vinylová laminátová podlaha
- Vnitřní instalace (vodovodní potrubí, kanalizace, elektřina)
- Dřevěný interiérový obklad ( v barvě dle vašeho výběru )
- Osvětlení
- Koupelnové vybavení ( toaleta, sprcha, umyvadlo, el.radiátor, boiler)
- kuchyňská jednotka s kuchyňskými spotřebiči (elektrická plotna, lednice, odsávací digestoř, dřez s kohoutkem)
- Tepelné čerpadlo ( vzduch – vzduch )
Cena nezahrnuje náklady na usazení
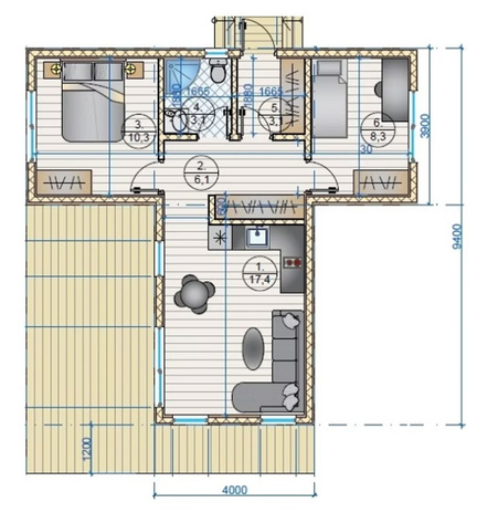
DUO 60 , krásný domek pro nenáročné . Hezké , veliké společenské prostory o až 50ti metrech čtverečných vám dopřejí dostatek místa pro krásné rodinné večery .
Zastavená plocha : 60m2
Obytná plocha: 49,3m2
Ložnice : 2
Koupelna
Kuchyňský kout
Obývací část


VARIANTA 1.

VARIANTA 2.

VARIANTA 3.

