T201 – Timber 121 je moderní rodinný dům s čistou architekturou a důrazem na funkční dispozici.
Dům nabízí pohodlné jednopodlažní bydlení s možností budoucí půdní vestavby nebo rozšíření o druhé podlaží.
Kombinace dřeva v přírodním odstínu a světlé fasády vytváří elegantní a nadčasový vzhled, který se hodí jak do městského, tak venkovského prostředí.
Velká okna zajišťují dostatek denního světla a přímé propojení interiéru s venkovní terasou.
Nosnou konstrukci tvoří prefabrikovaný panelový systém z masivního severského dřeva, který poskytuje vynikající tepelnou izolaci, rychlou montáž a dlouhou životnost.
Cena stavebnice dle specifikace, včetně dopravy na místo v ČR a DPH : 1 690 000,- Kč
Specifikace stavebnice
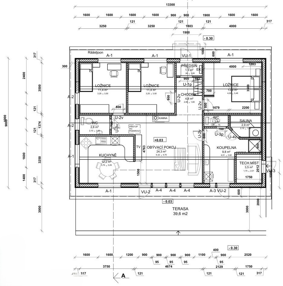
Zastavěná plocha: 119,7 m²
Užitná plocha: 99,8 m²
Podlaží: 1 (možnost půdní vestavby)
Konstrukce: prefabrikovaný panelový systém z masivního severského dřeva
Dodávka obsahuje: nosnou konstrukci stěn, stropní a střešní panely, spojovací materiál
Dodací lhůta: do 3 měsíců od podpisu smlouvy
Bez oken, dveří, fasádního obkladu a střešní krytiny – určeno pro vlastní dokončení
Dispozice
Obývací pokoj – 24,3 m²
Kuchyně – 12,2 m²
Ložnice 1 – 13,9 m²
Ložnice 2 – 11,4 m²
Ložnice 3 – 11,4 m²
Koupelna – 9,8 m²
Sauna – 2,9 m²
Technická místnost – 3,5 m²
WC – 2,8 m²
WC 2 – 1,3 m²
Vstupní chodba – 4,8 m²
Předsíň – 1,6 m²
Terasa – 39,6 m²
Celková užitná plocha: 99,8 m²
Výhody
✅ Praktická dispozice 3+kk s možností půdní vestavby
✅ Sauna a dvě koupelny již v základní dispozici
✅ Velká terasa navazující na obývací pokoj
✅ Kombinace dřevěné a světlé fasády
✅ Kvalitní prefabrikovaná dřevěná konstrukce
✅ Rychlá montáž do několika dnů



