Prostorný jednopodlažní dům s moderní dispozicí a integrovaným krytým parkováním.
Ideální pro rodinné bydlení s důrazem na pohodlí, praktičnost a přímé propojení s exteriérem přes velká okna a terasu.
Cena stavebnice dle specifikace, včetně dopravy na místo v ČR a DPH : 1 180 000,- Kč
Specifikace stavebnice
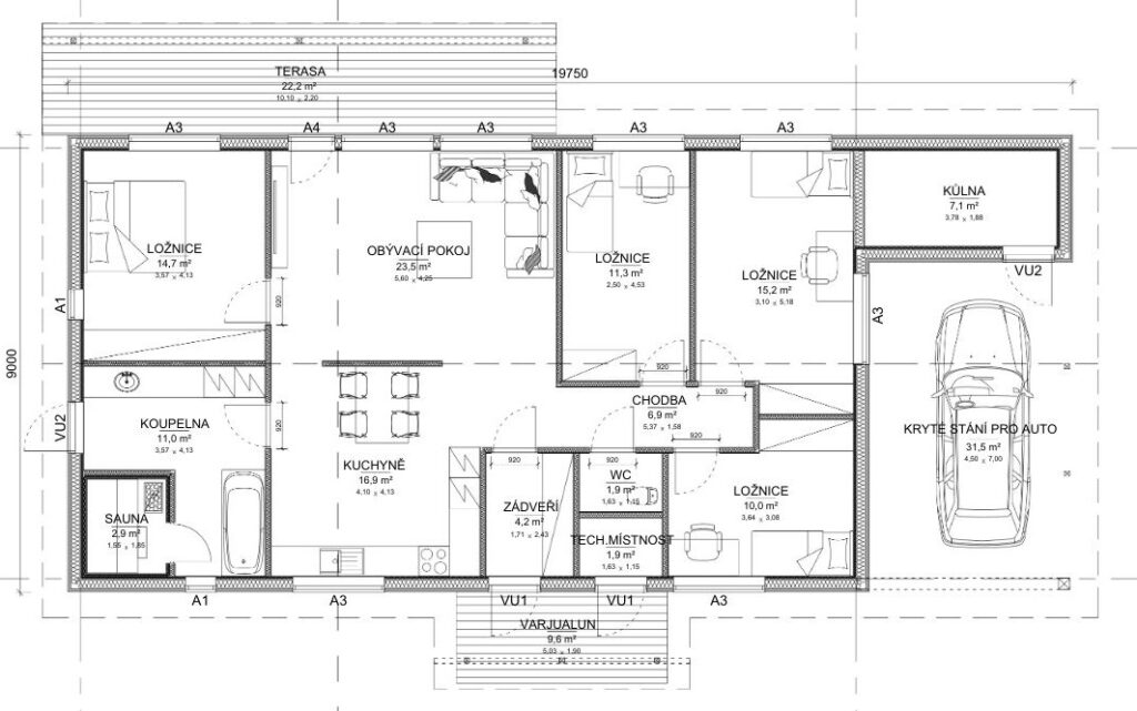
- Zastavěná plocha: cca 150 m²
- Užitná plocha: cca 120 m²
- Podlaží: 1
- Konstrukce: prefabrikovaný panelový systém z kvalitního severského dřeva
- Dodávka obsahuje: nosná konstrukce stěn, stropní a střešní panely, spojovací materiál
- Dodací lhůta: do 3 měsíců od podpisu smlouvy
- Bez oken, dveří, fasády a střešní krytiny – určeno pro vlastní dokončení
Dispozice
- Obývací pokoj: 23,6 m²
- Kuchyň: 16,9 m²
- Hlavní ložnice: 14,7 m²
- Ložnice 2: 11,3 m²
- Ložnice 3: 15,2 m²
- Ložnice 4: 10,0 m²
- Koupelna: 11,0 m²
- Toaleta: 1,9 m²
- Technická místnost: 1,9 m²
- Chodba: 6,9 m²
- Zádveří: 4,2 m²
- Kryté parkovací stání: 31,5 m²
Výhody
✅ Velká krytá terasa přístupná z obývací části
✅ 4 samostatné ložnice pro komfortní rodinné bydlení
✅ Praktické kryté parkování navazující na dům
✅ Rychlá montáž a vysoká přesnost výroby
✅ Nadčasový moderní vzhled se sedlovou střechou



