Reprezentativní a prostorný rodinný dům s velkým obývacím prostorem
Timber 186 je moderní bungalov ve tvaru do „U“, který poskytuje soukromí i otevřenost zároveň. Centrální obývací část s vysokým stropem a velkými prosklenými plochami vytváří vzdušný prostor plný světla. Křídla domu pak zajišťují klidovou zónu i praktické technické zázemí.
Cena stavebnice dle specifikace, včetně dopravy na místo v ČR a DPH : 1 590 000,- Kč
Specifikace stavebnice
- Zastavěná plocha: 220,6 m²
- Užitná plocha: 185,4 m²
- Podlaží: 1
- Konstrukce: prefabrikovaný panelový systém z kvalitního severského dřeva
- Dodávka obsahuje: nosné stěny, stropní a střešní panely, spojovací materiál
- Dodací lhůta: do 3 měsíců od podpisu smlouvy
- Bez oken, dveří, fasády a střešní krytiny – určeno pro vlastní dokončení
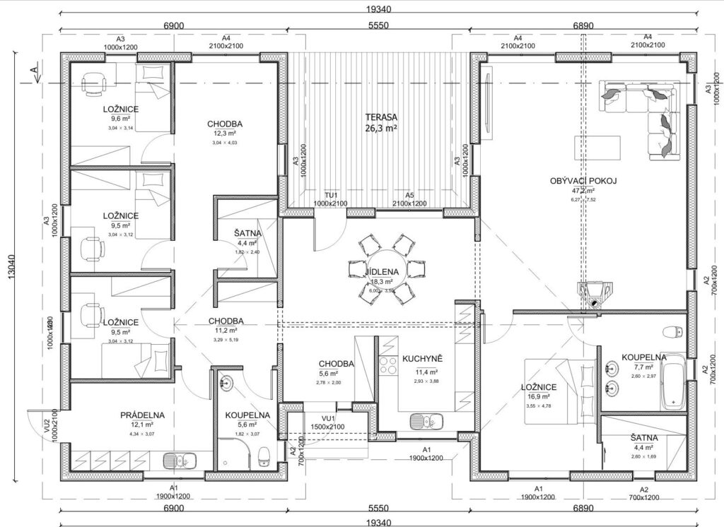
Dispozice
- Obývací pokoj – 47,2 m²
- Kuchyň – 11,4 m²
- Jídelna – 18,3 m²
- Ložnice – 16,9 m²
- Chodba – 12,3 m²
- Pokoj – 9,6 m²
- Pokoj – 9,5 m²
- Pokoj – 9,5 m²
- Koupelna – 7,7 m²
- Chodba – 5,6 m²
- WC 2 / sprcha – 5,6 m²
- Šatny – 2× 4,4 m²
- Chodba – 5,6 m²
- Chodba – 11,2 m²
- Terasa – 26,3 m²
Výhody
✅ Výjimečně prostorný obývací pokoj s vysokým stropem
✅ Až 5 samostatných pokojů – ideální pro rodinu i práci z domu
✅ Krytá vstupní část chrání před počasím
✅ Prosklené stěny propojují dům se zahradou
✅ Komfortní dispozice bez kompromisů



