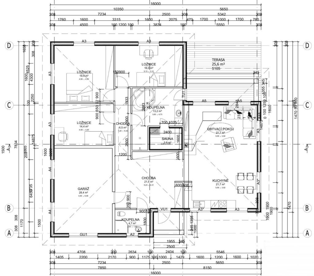
Praktický jednopodlažní rodinný dům s integrovanou garáží, navržený pro pohodlné bydlení rodiny.
Prostorná denní část domu je propojena se zahradou přes velká francouzská okna a krytou terasu.
Noční zóna se třemi ložnicemi poskytuje dostatek soukromí i úložného prostoru.
Cena stavebnice dle specifikace, včetně dopravy na místo v ČR a DPH : Na dotaz
Specifikace stavebnice
• Zastavěná plocha: cca 220 m²
• Užitná plocha: cca 171 m²
• Podlaží: 1
• Konstrukce: prefabrikovaný panelový systém z kvalitního severského dřeva
• Dodávka obsahuje: nosné stěny, stropní a střešní panely, spojovací materiál
• Dodací lhůta: do 3 měsíců od podpisu smlouvy
• Bez oken, dveří, fasády a střešní krytiny – určeno pro vlastní dokončení
Dispozice
• Obývací pokoj + jídelna – 27,3 m²
• Kuchyň – 15,5 m²
• Ložnice 1 – 19,4 m²
• Ložnice 2 – 16,0 m²
• Ložnice 3 – 14,4 m²
• Koupelna – 13,2 m²
• Sauna – 3,8 m²
• Technická místnost – 4,7 m²
• Zádveří – 4,2 m²
• Garáž – 26,3 m²
• Terasa – 25,6 m²
Výhody
✅ Integrovaná garáž
✅ Komfortní dispozice se třemi ložnicemi
✅ Krásné kryté venkovní posezení
✅ Velká okna pro světlý interiér
✅ Rychlá a přesná montáž panelového systému



