T128 je moderní dřevostavba s praktickým propojením obytné části a garáže. Prostorný obývací pokoj plynule navazuje na velkou terasu orientovanou do soukromé zahrady. Dům nabízí tři dětské pokoje, samostatnou ložnici a dvě koupelny pro maximální komfort rodiny. Dominantou je vnitřní krb a velká okna, která do interiéru přivádějí dostatek světla. Součástí je také sauna a technické zázemí.
Cena stavebnice dle specifikace, včetně dopravy na místo v ČR a DPH : 1 290 000,-Kč
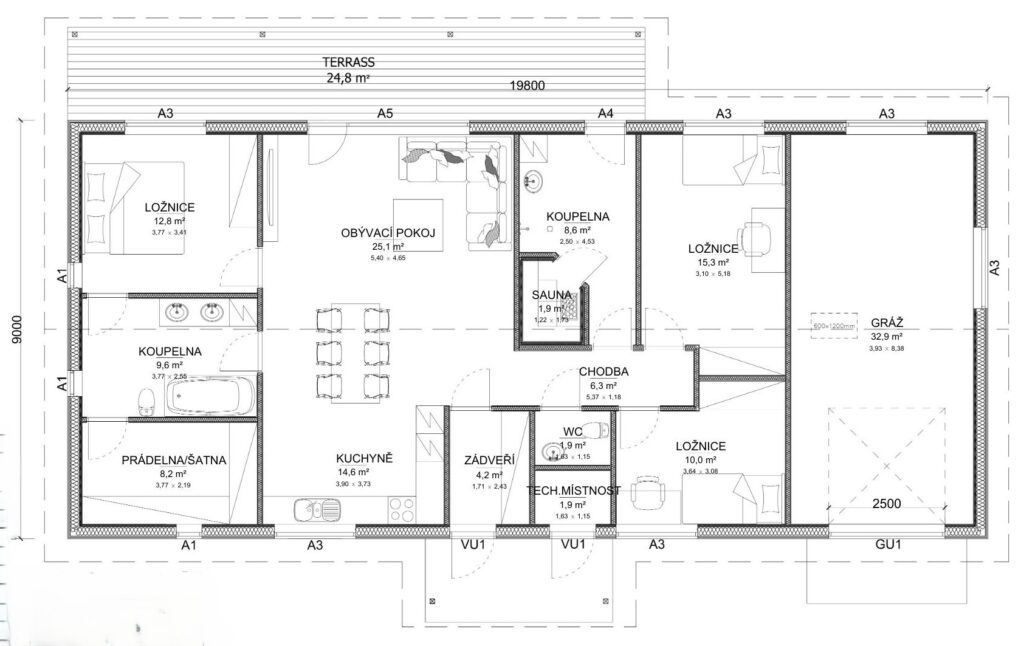
Dispozice: 4+kk
Užitná plocha: 153,4 m²
Zastavěná plocha: 217,3 m²
Garáž: 32,9 m²
Terasa: 24,8 m²
Místnosti a plochy
- Obývací pokoj: 25,1 m²
- Kuchyň + jídelna: 14,6 m²
- Ložnice: 12,8 m²
- Pokoj 1: 10,0 m²
- Pokoj 2: 15,3 m²
- Koupelna: 9,6 m²
- Prádelna / Šatna: 8,2 m²
- Druhá koupelna: 8,6 m²
- WC: 1,9 m²
- Sauna: 1,9 m²
- Technická místnost: 1,9 m²
- Chodba: 6,3 m²
- Předsíň: 4,2 m²
- Garáž: 32,9 m²
Pro koho je dům určen
✅ Rodiny s dětmi
✅ Pro střední a větší pozemky
✅ Pro celoroční moderní bydlení









