Moderní bungalov v kubickém stylu s integrovaným krytým parkovacím stáním.
Díky přímému propojení obytných prostor se zahradou a krytou terasou nabízí dům komfortní bydlení pro rodinu i náročnější uživatele.
Prefabrikovaná dřevostavba zaručuje rychlou montáž a přesné provedení.
Cena stavebnice dle specifikace, včetně dopravy na místo v ČR a DPH : 1 190 000,-Kč
Specifikace stavebnice
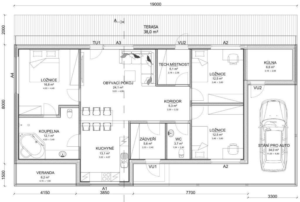
• Zastavěná plocha: cca 180,5 m²
• Užitná plocha: 117,5 m²
• Dispozice: 4+kk + technická místnost + sklad + kryté stání
• Podlaží: 1
• Konstrukce: prefabrikovaný panelový systém
• Dodání stavebnice: do 3 měsíců od podpisu smlouvy
• Součástí dodávky: nosná konstrukce, stropní a střešní panely, spojovací materiál
• Fasáda, okna, dveře a krytina nejsou součástí — určeno k dokončení
Dispozice
• Obývací pokoj: 24,1 m²
• Kuchyň: 13,1 m²
• Ložnice1: 16,3 m²
• Ložnice2: 12,5 m²
• Ložnice3: 12,5 m²
• Koupelna: 12,1 m²
• WC: 3,7 m²
• Technická místnost: 5,1 m²
• Zádveří: 5,6 m²
• Koridor: 5,3 m²
• Kůlna: 6,6 m²
• Kryté stání : 22,4 m²
Výhody
✅ Moderní vzhled – plochá střecha a minimalistická architektura
✅ Integrované kryté parkovací místo
✅ Velká terasa v celé šířce domu
✅ Přímý vstup na terasu z obýváku i ložnice
✅ Rychlá výstavba díky prefabrikaci



