Praktický jednopodlažní dům s moderní sedlovou střechou, otevřeným stropem v hlavní obytné části a širokými francouzskými okny směřujícími na terasu.
Model T122 – Timber 146 je ideální pro rodinu, která hledá komfortní 4+kk, přirozeně prosvětlené prostory a výborné dispoziční řešení.
Dům stavíme z prefabrikovaných dřevěných panelů, které zajišťují rychlou montáž i přesnost každého detailu.
Cena stavebnice dle specifikace, včetně dopravy na místo v ČR a DPH : 1 290 000,-Kč
Specifikace stavebnice
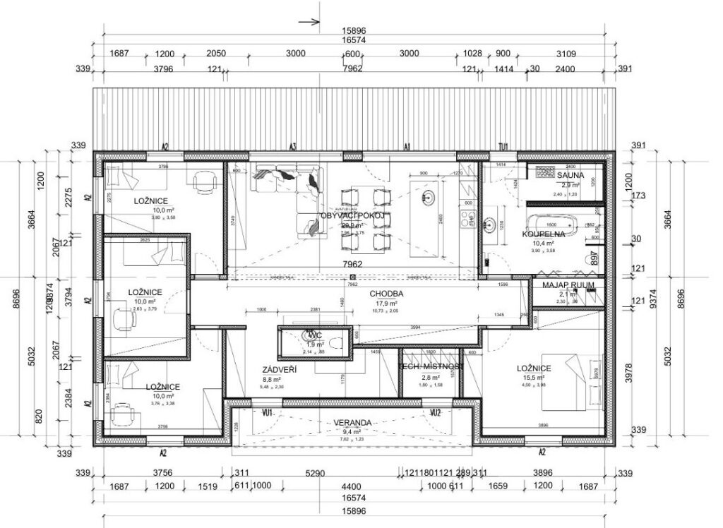
• Zastavěná plocha: cca 155,4 m²
• Užitná plocha: 122,0 m²
• Dispozice: 4+kk
• Podlaží: 1
• Konstrukce: prefabrikovaný panelový systém z kvalitního severského dřeva
• Dodací lhůta: do 3 měsíců od podpisu smlouvy
• Dodávka obsahuje: nosné panely, střešní konstrukci, spojovací materiál
• Určeno pro vlastní dokončení – bez oken, dveří, fasády a krytiny
Dispozice
• Obývací pokoj: 29,9 m²
• Ložnice: 15,5 m²
• Ložnice: 10,0 m²
• Ložnice: 10,0 m²
• Koupelna 1: 10,4 m²
• WC: 1,9 m²
• Sauna: 2,9 m²
• Tech. místnost: 2,8 m²
• Zádveří: 8,8 m²
• Chodba: 17,9 m²
• Veranda: 9,4 m²
Výhody
✅ Otevřený strop v obytném prostoru – vzdušnost a světlo
✅ Terasa po celé délce domu
✅ Moderní skandinávský vzhled (světlá i tmavá fasáda)
✅ Ideální dům pro rodiny – 3 ložnice
✅ Rychlá montáž díky prefabrikaci







