Prostorný rodinný dům s velkým obývacím pokojem a terasou.
Ideální pro rodiny, které chtějí komfortní a rychlé bydlení v přírodním stylu.
• Zastavěná plocha: cca 162,3 m²
• Užitná plocha: 139,7 m²
• Dispozice: 4+kk
• Podlaží: 1
• Konstrukce: panelový systém z kvalitního severského dřeva
• Dodávka obsahuje: stěnové panely, střešní systém, spojovací materiál
• Dodací lhůta: do 3 měsíců od podpisu smlouvy
• Bez oken, dveří, fasády a krytiny – určeno pro vlastní dokončení
Cena stavebnice dle specifikace, včetně dopravy na místo v ČR a DPH : 1 290 000,-Kč
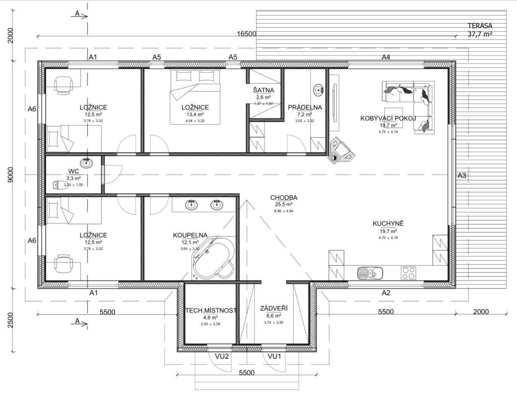
Dispozice
• Obývací pokoj: 19,7 m²
• Kuchyně + jídelna: 19,7 m²
• Ložnice: 13,4 m²
• Ložnice: 12,5 m²
• Ložnice: 12,5 m²
• Koupelna: 12,1 m²
• WC: 3,3 m²
• Šatna: 2,6 m²
• Prádelna: 7,2 m²
• Zádveří: 6,6 m²
• Chodba: 25,5 m²
• Tech. místnost: 4,8 m²
Výhody
✅ Velká terasa po celé délce domu
✅ Dostatek místa pro rodinu – 3 ložnice + šatna + komora
✅ Obývací pokoj s krbem a přímým vstupem na terasu
✅ Perfektní orientace na světové strany = světlo celý den
✅ Vysoký standard izolací + rychlá montáž



