Timber 131 Tammearu je moderní rodinný dům typu bungalov ve tvaru L, který kombinuje funkční dispozici, prostornost a skandinávskou eleganci.
Díky velkým proskleným plochám a propojení s rozlehlou terasou působí dům mimořádně vzdušně a přirozeně spojuje interiér s okolní přírodou.
Vhodný pro čtyř- až pětičlennou rodinu, která ocení dostatek soukromí i společného prostoru.
Cena stavebnice dle specifikace, včetně dopravy na místo v ČR a DPH : 1 350 000,-Kč
Specifikace stavebnice
- Zastavěná plocha: 156,9 m²
- Užitná plocha: 130,9 m²
- Podlaží: 1
- Konstrukce: prefabrikovaný panelový systém z masivního severského dřeva
- Dodávka obsahuje: nosné stěny, střešní a stropní panely, spojovací materiál
- Dodací lhůta: do 3 měsíců od podpisu smlouvy
- Bez oken, dveří, fasádního obkladu a střešní krytiny – určeno pro vlastní dokončení
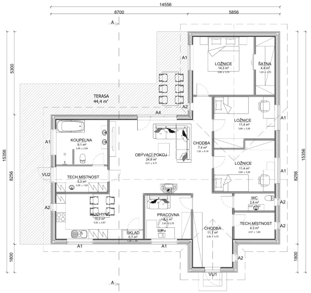
Dispozice
- Obývací pokoj – 24,9 m²
- Kuchyň – 15,0 m²
- Ložnice 1 – 14,3 m²
- Ložnice 2 – 11,4 m²
- Ložnice 3 – 11,4 m²
- Koupelna – 9,1 m²
- WC – 2,8 m²
- Chodba – 11,7 m²
- Chodba – 7,4 m²
- Pracovna – 8,1 m²
- Technická místnost – 4,3 m²
- Sklad – 0,7 m²
- Technická místnost – 5,3 m²
- Šatna – 4,4 m²
Celková užitná plocha: 130,9 m²
Zastavěná plocha: 156,9 m²
Výhody
✅ Praktický půdorys ve tvaru L s chráněnou terasou
✅ Tři samostatné ložnice + pracovna
✅ Velký obývací prostor s krbem a jídelnou
✅ Oddělená technická část domu
✅ Světlý interiér díky velkým oknům
✅ Energeticky úsporná dřevěná konstrukce
✅ Rychlá montáž stavebnice do 3 měsíců
✅ Skandinávská kvalita a design






