Timber 153 – HOME 2028 je moderní rodinný dům ve tvaru písmene L, který spojuje vzdušnost, prostor a propojení s exteriérem.
Dominantou je velkorysý obývací prostor s otevřeným stropem až po krov, který spolu s rozsáhlým prosklením vytváří dokonalé spojení s přírodou a terasou o ploše téměř 90 m².
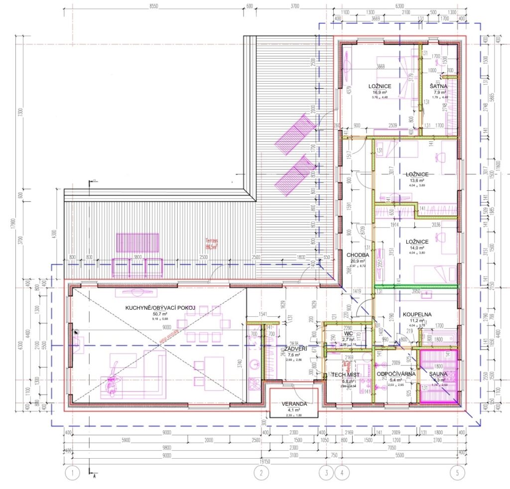
Dům nabízí 4 ložnice, dvě koupelny, saunu a samostatnou technickou místnost – ideální řešení pro náročné rodiny, které hledají styl, komfort i energetickou úspornost.
Cena stavebnice dle specifikace, včetně dopravy na místo v ČR a DPH : 1 490 000,-Kč
Specifikace stavebnice
- Zastavěná plocha: 193,7 m²
- Užitná plocha: 160,8 m²
- Podlaží: 1
- Konstrukce: prefabrikovaný panelový systém z masivního severského dřeva
- Dodávka obsahuje: nosné stěny, střešní a stropní panely, spojovací materiál
- Dodací lhůta: do 3 měsíců od podpisu smlouvy
- Bez oken, dveří, fasádního obkladu a střešní krytiny – určeno pro vlastní dokončení
Dispozice
- Obývací pokoj + kuchyň – 50,7 m²
- Ložnice 1 – 16,9 m²
- Ložnice 2 – 14,0 m²
- Ložnice 3 – 13,6 m²
- Ložnice 4 – 11,0 m²
- Koupelna – 11,2 m²
- Sauna – 4,3 m²
- Odpočívárna – 5,4 m²
- Technická místnost – 5,8 m²
- Zádveří – 7,6 m²
- Šatna – 7,9 m²
- Chodba – 20,9 m²
- WC – 2,7 m²
Výhody
✅ Luxusní obývací prostor s otevřeným stropem a krbem
✅ Čtyři ložnice a dvě koupelny
✅ Sauna a samostatná technická místnost
✅ Rozsáhlá terasa ve tvaru L (86 m²) – ideální pro relax a letní kuchyň
✅ Moderní architektura se severskou estetikou
✅ Energeticky úsporný panelový systém
✅ Dům dodán jako stavebnice do 3 měsíců





