Timber 140 – FRANK je velkorysý přízemní rodinný dům v moderním severském stylu.
Kombinuje minimalistickou architekturu s praktickou dispozicí 4+kk a integrovaným carportem a technickým zázemím.
Je ideální pro rodiny, které hledají prostorné, energeticky úsporné a zároveň elegantní bydlení s maximálním komfortem.
Cena stavebnice dle specifikace, včetně dopravy na místo v ČR a DPH : 1 190 000,-Kč
Specifikace stavebnice
- Zastavěná plocha: 224,3 m²
- Užitná plocha: 118,6 m²
- Podlaží: 1
- Konstrukce: prefabrikovaný panelový systém z masivního severského dřeva
- Dodávka obsahuje: nosné stěny, střešní a stropní panely, spojovací materiál
- Dodací lhůta: do 3 měsíců od podpisu smlouvy
- Bez oken, dveří, fasádního obkladu a střešní krytiny – určeno pro vlastní dokončení
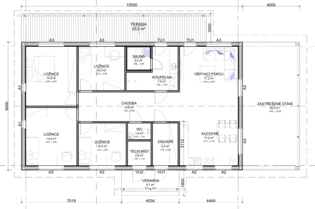
Dispozice
- Obývací pokoj – 17,2 m²
- Kuchyň – 17,2 m²
- Ložnice 1 – 14,9 m²
- Ložnice 2 – 14,5 m²
- Ložnice 3 – 10,0 m²
- Ložnice 4 – 10,0 m²
- Koupelna – 7,9 m²
- Sauna – 2,4 m²
- Technická místnost – 2,8 m²
- WC – 1,9 m²
- Zádveří – 5,3 m²
- Chodba – 14,6 m²
- Veranda – 9,1 m²
- Terasa – 25,9 m²
- Zastřešené stání – 45,0 m²
Výhody
✅ 4 ložnice + sauna a technická místnost
✅ Integrovaný přístřešek a sklad
✅ Velký obývací prostor s krbem a jídelnou
✅ Prosvětlené interiéry s velkými okny
✅ Energeticky úsporná dřevěná konstrukce
✅ Montáž domu během několika dní
✅ Skandinávský design a kvalita




