Timber KARU 1 je elegantní a kompaktní rodinný dům ve skandinávském stylu, který nabízí překvapivě prostorné a světlé interiéry.
Dům má výrazný architektonický prvek – přední kryté závětří a široký prosklený vstup, díky čemuž působí útulně a zároveň reprezentativně.
Interiér je navržen s důrazem na jednoduchost, funkčnost a přirozené světlo – velká okna propojují obývací část s přírodou, zatímco dispozice 3 + kk poskytuje pohodlné bydlení pro rodinu či pár, kteří oceňují styl a klid.
Cena stavebnice dle specifikace, včetně dopravy na místo v ČR a DPH : 990 000,-Kč
Specifikace stavebnice
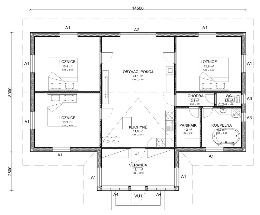
- Zastavěná plocha: 140,8 m²
- Užitná plocha: 105,2 m²
- Podlaží: 1
- Konstrukce: prefabrikovaný panelový systém z masivního severského dřeva
- Dodávka obsahuje: nosné stěny, střešní panely, spojovací materiál
- Dodací lhůta: do 3 měsíců od podpisu smlouvy
- Bez oken, dveří, fasádního obkladu a střešní krytiny – určeno pro vlastní dokončení
Dispozice
- Obývací pokoj – 24,1 m²
- Kuchyň – 11,8 m²
- Ložnice 1 – 15,9 m²
- Ložnice 2 – 15,9 m²
- Ložnice 3 – 15,9 m²
- Koupelna – 6,9 m²
- WC – 1,5 m²
- Pracovna – 4,2 m²
- Chodba – 2,3 m²
- Veranda – 12,1 m²
Výhody
✅ Tři prostorné ložnice
✅ Velký obývací prostor s jídelnou a krbem
✅ Prakticky oddělená kuchyň s přímým vstupem do obývací části
✅ Kompaktní tvar, ideální pro menší pozemky
✅ Energeticky úsporná konstrukce z prefabrikovaných dřevěných panelů
✅ Montáž během několika dnů
✅ Kvalita skandinávské výroby a nadčasový design



