Timber 125 – ESKY je moderní a prostorný rodinný dům severského stylu, který spojuje funkčnost, přírodní materiály a elegantní vzhled.
Díky svému promyšlenému půdorysu nabízí dostatek prostoru pro čtyřčlennou rodinu – tři ložnice, velký obývací pokoj s jídelnou a krbem, saunu, technickou místnost i prostornou terasu s přímým vstupem z obytné části.
Konstrukce z prefabrikovaných dřevěných panelů zaručuje přesnost, pevnost a mimořádně rychlou montáž.
Cena stavebnice dle specifikace, včetně dopravy na místo v ČR a DPH : 1 100 000,-Kč
Specifikace stavebnice
- Zastavěná plocha: 165,0 m²
- Užitná plocha: 106,9 m²
- Podlaží: 1
- Konstrukce: prefabrikovaný panelový systém z masivního severského dřeva
- Dodávka obsahuje: nosné stěny, stropní a střešní panely, spojovací materiál
- Dodací lhůta: do 3 měsíců od podpisu smlouvy
- Bez oken, dveří, fasádního obkladu a krytiny – určeno pro vlastní dokončení
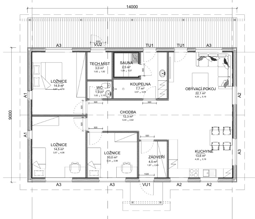
Dispozice
- Obývací pokoj – 22,1 m²
- Kuchyň – 13,6 m²
- Ložnice 1 – 14,9 m²
- Ložnice 2 – 14,5 m²
- Ložnice 3 – 10,0 m²
- Koupelna – 7,7 m²
- Sauna – 2,5 m²
- WC – 1,9 m²
- Technická místnost – 3,0 m²
- Zádveří – 4,5 m²
- Chodba – 12,3 m²
Výhody
✅ 3 ložnice + sauna a technická místnost
✅ Velkorysý obývací prostor s jídelnou a krbem
✅ Přímý vstup na krytou terasu
✅ Jednoduchá a funkční architektura
✅ Energeticky úsporná konstrukce z masivního dřeva
✅ Rychlá montáž během několika dní
✅ Skandinávská kvalita a design



