Elegantní a nadčasový T109 – Timber 112 představuje ideální rodinný dům s klasickým půdorysem a praktickým dispozičním řešením.
Jednopodlažní dům se sedlovou střechou nabízí tři samostatné ložnice, prostorný obývací pokoj s jídelnou a kuchyní a krytou terasu pro venkovní posezení.
Jednoduchá architektura doplněná o dřevěný obklad v severském stylu působí útulně a přirozeně zapadne do městské i venkovské zástavby.
Konstrukční systém tvoří prefabrikované panely z masivního severského dřeva, které zajišťují přesnost, pevnost a rychlou montáž.
Cena stavebnice dle specifikace, včetně dopravy na místo v ČR a DPH : Na dotaz
Specifikace stavebnice
- Zastavěná plocha: 112,4 m²
- Užitná plocha: 87,5 m²
- Podlaží: 1
- Konstrukce: prefabrikovaný panelový systém z masivního severského dřeva
- Dodávka obsahuje: nosnou konstrukci stěn, stropní a střešní panely, spojovací materiál
- Dodací lhůta: do 3 měsíců od podpisu smlouvy
- Bez oken, dveří, fasádního obkladu a střešní krytiny – určeno pro vlastní dokončení
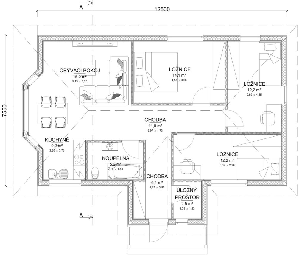
Dispozice
- Obývací pokoj – 15,0 m²
- Kuchyň – 9,2 m²
- Ložnice 1 – 14,1 m²
- Ložnice 2 – 12,2 m²
- Ložnice 3 – 12,2 m²
- Předsíň – 6,1 m²
- Chodba – 11,0 m²
- Koupelna – 5,2 m²
- Komora – 2,5 m²
Výhody
✅ Tradiční dům v moderním skandinávském pojetí
✅ Tři samostatné ložnice
✅ Velký obývací prostor s přímým vstupem na terasu
✅ Kompaktní rozměry vhodné i na menší pozemky
✅ Vysoká energetická úspornost díky dřevěným panelům
✅ Rychlá montáž a přesné zpracování



