Timber SAARUSTE je výjimečný moderní dům s tradiční sedlovou střechou a čistou skandinávskou architekturou.
Kombinace černé a přírodní dřevěné fasády vytváří elegantní kontrast, který dokonale zapadá jak do městského prostředí, tak i do přírody.
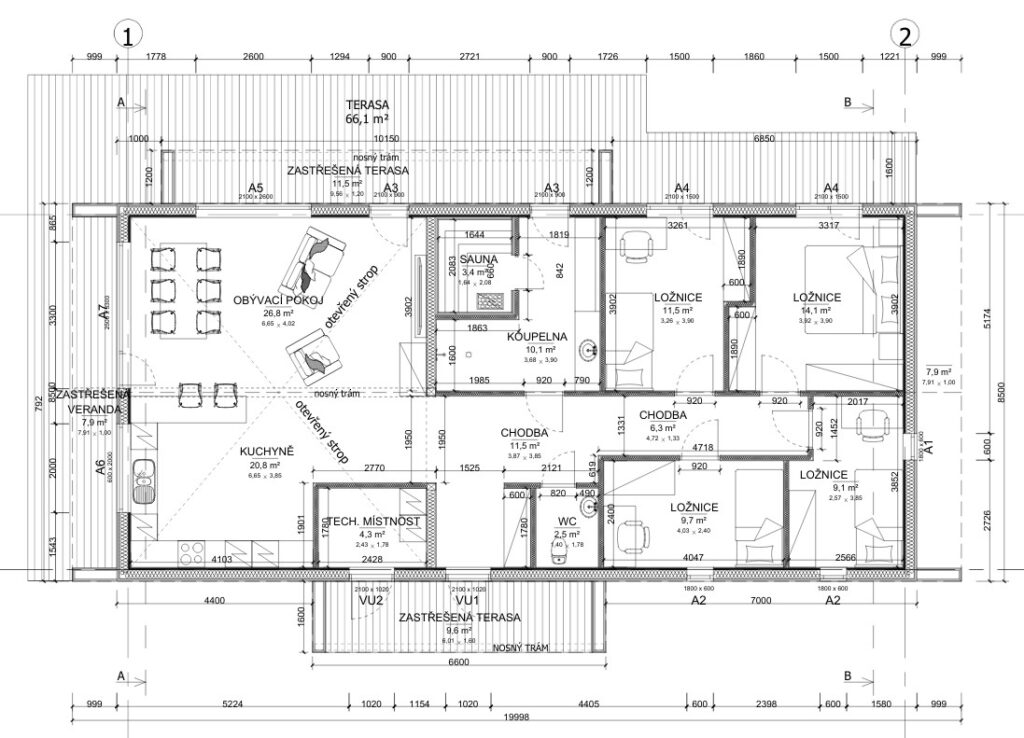
Velkorysý obývací prostor s otevřeným stropem, čtyři ložnice a prostorná terasa o ploše více než 70 m² dělají z tohoto domu ideální řešení pro rodinné bydlení nebo rekreační sídlo.
Konstrukce z prefabrikovaných panelů z kvalitního severského dřeva zaručuje přesnost, dlouhou životnost a rychlou montáž.
Cena stavebnice dle specifikace, včetně dopravy na místo v ČR a DPH : 1 290 000,-Kč
Specifikace stavebnice
- Zastavěná plocha: 175,7 m²
- Užitná plocha: 130,0 m²
- Podlaží: 1
- Konstrukce: prefabrikovaný panelový systém z masivního severského dřeva
- Dodávka obsahuje: nosnou konstrukci stěn, stropní a střešní panely, spojovací materiál
- Dodací lhůta: do 3 měsíců od podpisu smlouvy
- Bez oken, dveří, fasádního obkladu a střešní krytiny – určeno pro vlastní dokončení
Dispozice
- Obývací pokoj – 26,8 m²
- Kuchyň – 20,8 m²
- Ložnice 1 – 14,1 m²
- Ložnice 2 – 11,5 m²
- Ložnice 3 – 9,7 m²
- Ložnice 4 – 9,1 m²
- Koupelna – 10,1 m²
- Sauna – 3,4 m²
- Chodba – 11,5 m²
- Chodba – 6,3 m²
- Technická místnost – 4,3 m²
- WC – 2,5 m²
Výhody
✅ Moderní architektura s tradičním tvarem střechy
✅ Až 4 ložnice – vhodné pro větší rodinu
✅ Otevřený strop a velkoformátová okna s výhledem do zahrady
✅ Velká terasa 72 m² pro odpočinek i grilování
✅ Možnost sauny přímo v interiéru
✅ Rychlá montáž z prefabrikovaných panelů
✅ Nadčasová kombinace černé a přírodního dřeva



