T107 – Timber 90 je elegantní přízemní dům s prostornou terasou a integrovaným přístřeškem pro auto.
Díky promyšlené dispozici nabízí komfortní bydlení pro 3–4člennou rodinu s možností relaxace v sauně nebo vířivce.
Dům vyniká moderním vzhledem, jednoduchou linií střechy a přirozeným propojením interiéru s exteriérem.
Nosná konstrukce je z prefabrikovaného panelového systému z kvalitního severského dřeva, který zajišťuje vysokou přesnost, odolnost a rychlou montáž přímo na pozemku.
Cena stavebnice dle specifikace, včetně dopravy na místo v ČR a DPH : Na dotaz
Specifikace stavebnice
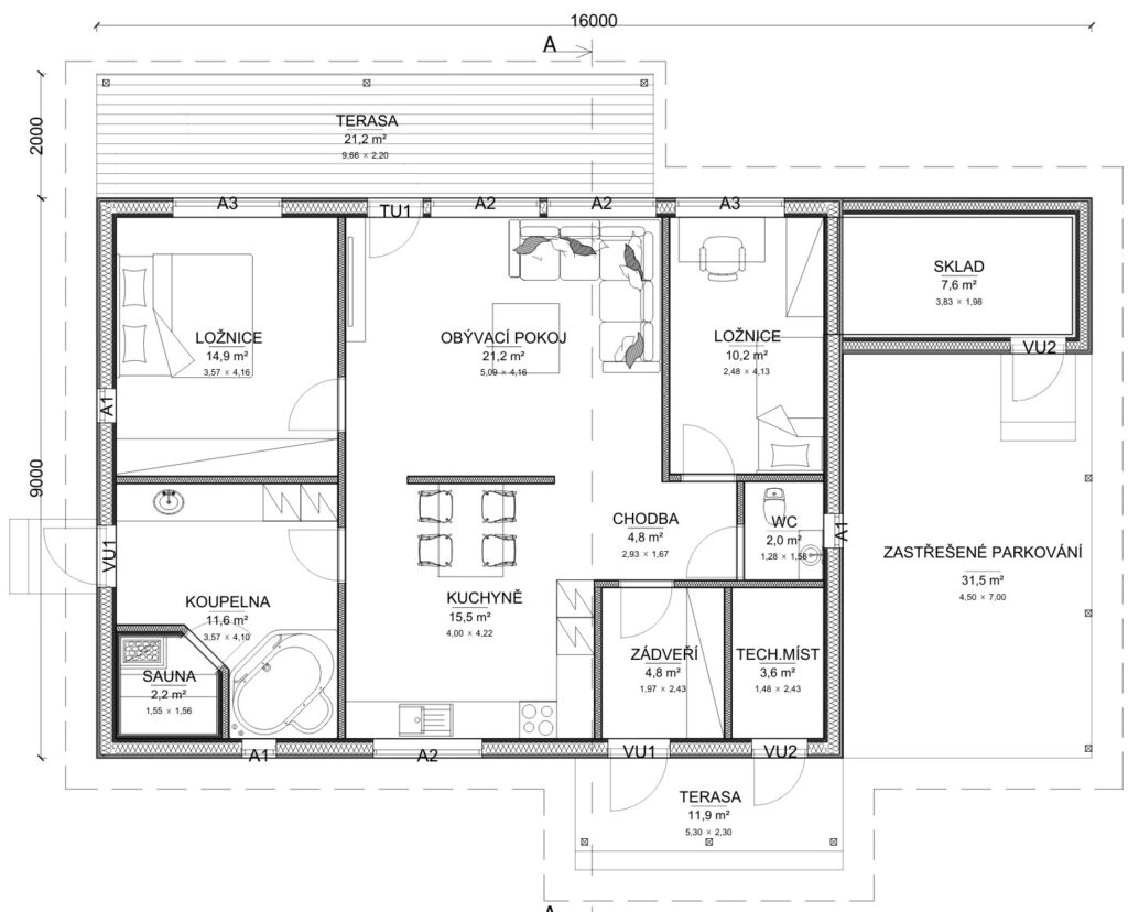
- Zastavěná plocha: 182,7 m²
- Užitná plocha: 98,4 m²
- Podlaží: 1
- Konstrukce: prefabrikovaný panelový systém z masivního severského dřeva
- Dodávka obsahuje: nosnou konstrukci stěn, stropní a střešní panely, spojovací materiál
- Dodací lhůta: do 3 měsíců od podpisu smlouvy
- Bez oken, dveří, fasádního obkladu a střešní krytiny – určeno pro vlastní dokončení
Dispozice
- Obývací pokoj – 21,2 m²
- Kuchyň – 15,5 m²
- Ložnice 1 – 14,9 m²
- Ložnice 2 – 10,2 m²
- Předsíň – 4,8 m²
- Chodba – 4,8 m²
- Technická místnost – 3,6 m²
- Koupelna – 11,6 m²
- WC – 2,0 m²
- Sauna – 2,2 m²
- Garáž / přístřešek – 31,5 m²
- Terasy a krytá stání – celkem 64,7 m²
Výhody
✅ Velký obývací prostor s přímým vstupem na terasu
✅ Dvě samostatné ložnice a sauna s relax zónou
✅ Integrovaný přístřešek pro auto a úložné prostory
✅ Rychlá montáž – hrubá stavba do několika dní
✅ Nadčasová skandinávská architektura
✅ Vhodný jako trvalé bydlení i rekreační dům




