Elegantní přízemní dům T106 – Timber 102 zaujme jednoduchou moderní architekturou s valbovou střechou a promyšleným dispozičním řešením.
Je ideální volbou pro rodinu, která hledá komfortní bydlení s dostatkem prostoru i přirozeného světla. Dominantou domu je velký obývací prostor s kuchyní a přímým vstupem na rozměrnou terasu o ploše více než 50 m².
Konstrukční systém tvoří prefabrikované panely z kvalitního severského dřeva, které zaručují přesnost, dlouhou životnost a rychlou montáž.
Cena stavebnice dle specifikace, včetně dopravy na místo v ČR a DPH : 890 000,-Kč
Specifikace stavebnice
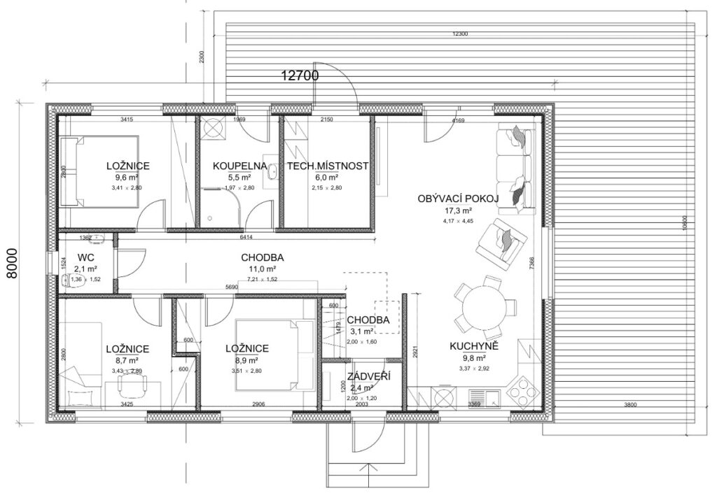
- Zastavěná plocha: 127,0 m²
- Užitná plocha: 84,5 m²
- Podlaží: 1
- Konstrukce: prefabrikovaný panelový systém z masivního severského dřeva
- Dodávka obsahuje: nosnou konstrukci stěn, stropní a střešní panely, spojovací materiál
- Dodací lhůta: do 3 měsíců od podpisu smlouvy
- Bez oken, dveří, fasádního obkladu a střešní krytiny – určeno pro vlastní dokončení
Dispozice
- Obývací pokoj – 17,3 m²
- Kuchyň – 9,8 m²
- Ložnice 1 – 8,9 m²
- Ložnice 2 – 9,6 m²
- Ložnice 3 – 8,7 m²
- Chodba – 3,1 m²
- Zádveří – 2,4 m²
- Koupelna – 5,5 m²
- Tech. místnost – 6,0 m²
- WC – 2,1 m²
- Chodba – 11 m²
Výhody
✅ Moderní rodinný dům s valbovou střechou
✅ Až tři samostatné ložnice
✅ Prostorná terasa přístupná přímo z obývací části
✅ Dvě koupelny a samostatné WC
✅ Konstrukce z prefabrikovaných panelů – montáž během několika dní
✅ Ideální jako trvalé bydlení i rekreační dům



