Moderní jednopodlažní rodinný dům s tradiční sedlovou střechou, promyšlenou dispozicí a možností kryté terasy.
Model T105 – Timber 90 poskytuje komfortní bydlení pro 3–4člennou rodinu, kombinuje velký otevřený obytný prostor s praktickým zázemím a relaxační částí se saunou.
Dům je vyroben z prefabrikovaného panelového systému z kvalitního severského dřeva, který zaručuje přesnost, dlouhou životnost a rychlou montáž.
Cena stavebnice dle specifikace, včetně dopravy na místo v ČR a DPH : 799 000,-Kč
Specifikace stavebnice
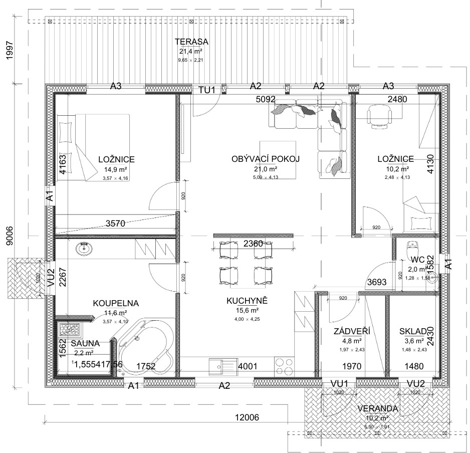
- Zastavěná plocha: 139,7 m²
- Užitná plocha: 90,8 m²
- Podlaží: 1
- Konstrukce: prefabrikovaný panelový systém z kvalitního severského dřeva
- Dodávka obsahuje: nosnou konstrukci stěn, stropní a střešní panely, spojovací materiál
- Dodací lhůta: do 3 měsíců od podpisu smlouvy
- Bez oken, dveří, fasádního obkladu a střešní krytiny – určeno pro vlastní dokončení
Dispozice
- Obývací pokoj – 21,0 m²
- Kuchyň – 15,6 m²
- Ložnice 1 – 14,9 m²
- Ložnice 2 – 10,2 m²
- Zádveří – 4,8 m²
- Sklad – 3,6 m²
- Sauna – 2,2 m²
- Koupelna – 11,6 m²
- WC – 2,0 m²
- Terasa – 21,4 m²
- Veranda – 10,2 m²
Výhody
✅ Prostorný rodinný dům s promyšlenou dispozicí
✅ Samostatná sauna a velká koupelna
✅ Možnost přímého vstupu na terasu z obývací části
✅ Klasická sedlová střecha s nadčasovým vzhledem
✅ Prefabrikovaná konstrukce pro rychlou a přesnou montáž


