Prostorný jednopodlažní dům se sedlovou střechou určený pro rodinné bydlení.
Model T104 – Timber 80 nabízí komfortní dispozici se dvěma ložnicemi, velkým obývacím prostorem a samostatnou technickou místností.
Je ideální volbou pro ty, kteří chtějí dům s jednoduchou montáží, příjemným designem a plnohodnotným obytným zázemím.
Dům je vyroben z prefabrikovaných panelů z kvalitního severského dřeva, které zaručují dlouhou životnost, přesnost výroby a rychlou výstavbu.
Cena stavebnice dle specifikace, včetně dopravy na místo v ČR a DPH : 790 000,- Kč
Specifikace stavebnice
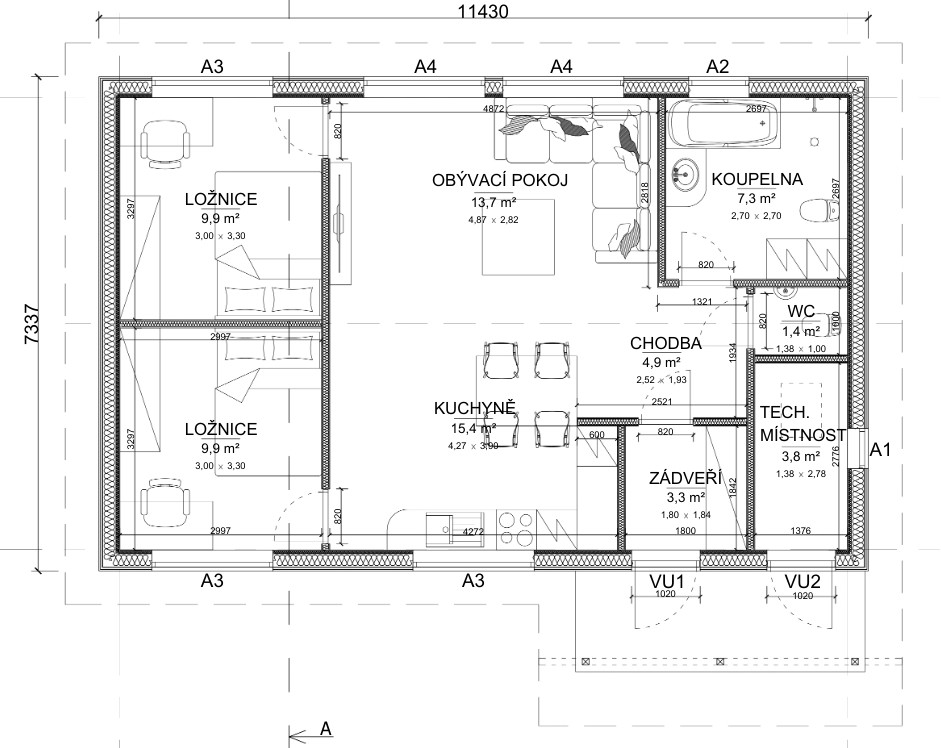
- Zastavěná plocha: 96,3 m²
- Užitná plocha: 69,6 m²
- Podlaží: 1
- Konstrukce: prefabrikovaný panelový systém z kvalitního severského dřeva
- Dodávka obsahuje: nosnou konstrukci stěn, stropní a střešní panely, spojovací materiál
- Dodací lhůta: do 3 měsíců od podpisu smlouvy
- Bez oken, dveří, fasádního obkladu a krytiny – určeno pro vlastní dokončení
Dispozice
- Obývací pokoj – 13,7 m²
- Kuchyň – 15,4 m²
- Ložnice 1 – 9,9 m²
- Ložnice 2 – 9,9 m²
- Koupelna – 7,3 m²
- WC – 1,4 m²
- Chodba – 4,9 m²
- Technická místnost – 3,8 m²
- Zádveří – 3,3 m²
Výhody
✅ Ideální rodinný dům pro trvalé bydlení
✅ Klasická sedlová střecha s nadčasovým vzhledem
✅ Velký obytný prostor s přímým vstupem na terasu
✅ Oddělená technická místnost a WC
✅ Rychlá montáž z prefabrikovaných panelů



