Moderní jednopodlažní dům ve skandinávském stylu, který spojuje jednoduchost, funkčnost a příjemný design.
Model T101 – Timber 60 je ideální jako menší rodinný nebo rekreační dům. Otevřený obývací prostor s velkými okny přináší dostatek denního světla a propojuje interiér se zahradou.
Dům je postaven z prefabrikovaných dřevěných panelů z kvalitního severského dřeva, které zaručují vysokou přesnost výroby, rychlou montáž a dlouhou životnost.
Cena stavebnice dle specifikace, včetně dopravy na místo v ČR a DPH : 665 000,- Kč
Specifikace stavebnice
- Zastavěná plocha: 59,9 m²
- Užitná plocha: 48,5 m²
- Podlaží: 1
- Konstrukce: prefabrikovaný panelový systém z kvalitního severského dřeva
- Dodávka obsahuje: nosnou konstrukci stěn, stropní a střešní panely, spojovací materiál
- Dodací lhůta: do 3 měsíců od podpisu smlouvy
- Bez oken, dveří, fasádního obkladu a krytiny – určeno pro vlastní dokončení
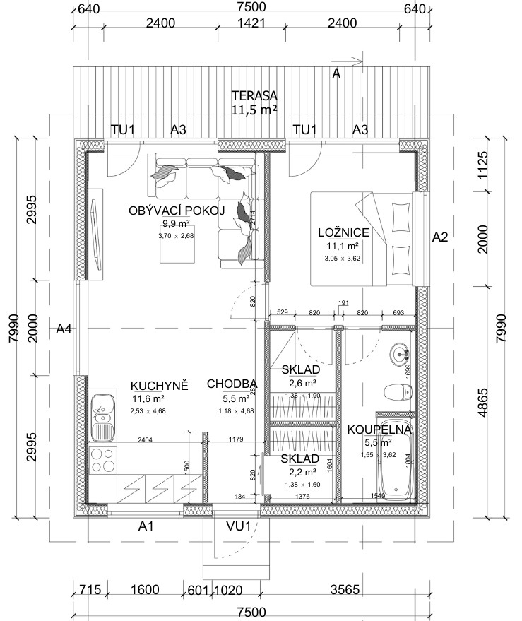
Dispozice
- Obývací pokoj – 13,6 m²
- Kuchyň + jídelna – 9,1 m²
- Ložnice – 11,0 m²
- Koupelna – 5,5 m²
- Předsíň – 4,3 m²
- Komora – 2,2 m²
- Chodba – 2,6 m²
- Terasa – 11,5 m²
Výhody
✅ Jednoduchý půdorys a efektivní využití prostoru
✅ Ideální pro trvalé i rekreační bydlení
✅ Vysoká energetická úspornost díky panelové konstrukci
✅ Rychlá montáž a čistý moderní vzhled
✅ Vhodný i pro menší pozemky



