T137 – Timber 137 je moderní přízemní dům s krytým parkovacím stáním a prostornou terasou, ideální pro rodinu, která hledá komfortní a praktické bydlení.
Díky promyšlené dispozici nabízí tři ložnice, velký obývací prostor s kuchyní, dvě koupelny, saunu a technickou místnost.
Dům je navržen tak, aby poskytl maximum užitné plochy a přirozené propojení interiéru se zahradou.
Nosná konstrukce je z prefabrikovaného panelového systému z kvalitního severského dřeva, který zaručuje vysokou přesnost, odolnost a rychlou montáž přímo na pozemku.
Cena stavebnice dle specifikace, včetně dopravy na místo v ČR a DPH : 1 150 000,- Kč
Specifikace stavebnice
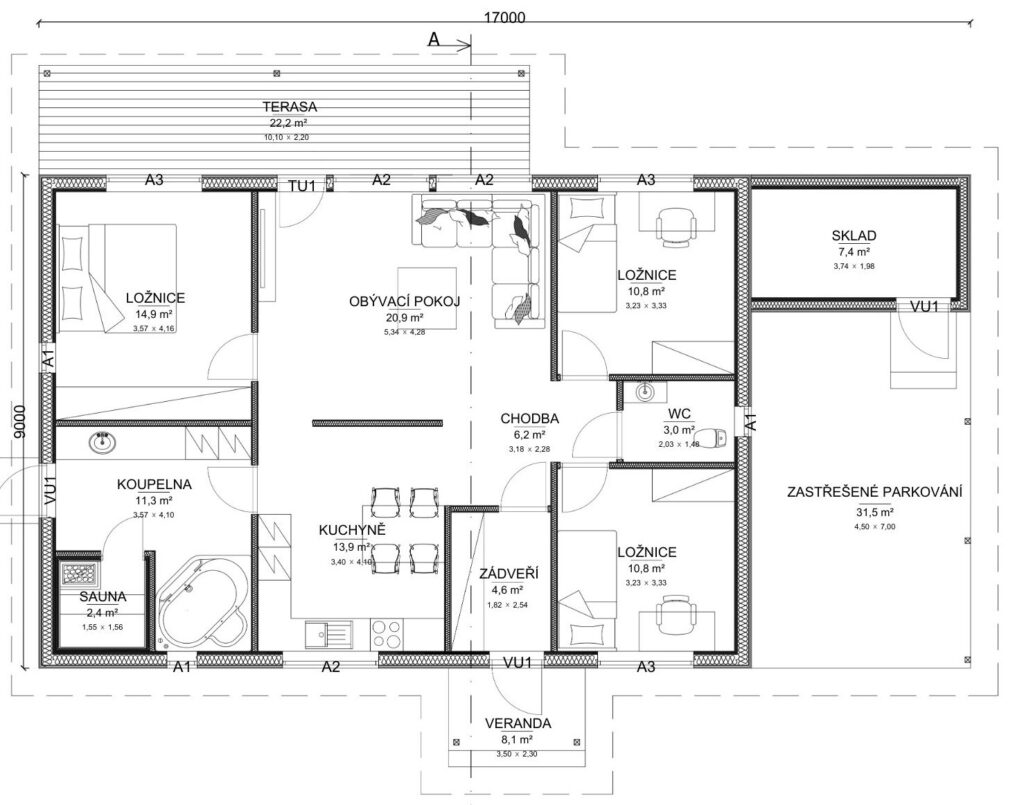
Zastavěná plocha: 188,8 m²
Užitná plocha: 106,3 m²
Podlaží: 1
Konstrukce: prefabrikovaný panelový systém z masivního severského dřeva
Dodávka obsahuje: nosnou konstrukci stěn, střešní vazníky, spojovací materiál
Dodací lhůta: do 3 měsíců od podpisu smlouvy
Bez oken, dveří, fasádního obkladu a střešní krytiny – určeno pro vlastní dokončení
Dispozice
Obývací pokoj – 20,9 m²
Kuchyň – 13,9 m²
Ložnice 1 – 14,9 m²
Ložnice 2 – 10,8 m²
Ložnice 3 – 10,8 m²
Koupelna – 11,3 m²
WC – 3,0 m²
Sauna – 2,4 m²
Zádveří – 4,6 m²
Chodba – 6,2 m²
Sklad – 7,4 m²
Kryté stání – 31,5 m²
Výhody
✅ Moderní architektura a přírodní materiály
✅ Sauna a dvě koupelny v základním řešení
✅ Velká terasa a kryté parkovací stání
✅ Rychlá montáž – hrubá stavba během několika dní
✅ Vhodný jako trvalé i rekreační bydlení
✅ Vyrobeno z kvalitního severského dřeva v Estonsku


