Skandinávská chata s panoramatickým prosklením a výhledem do přírody
Moderní nízkoenergetická chata Lake House 59 je navržena v čistém skandinávském stylu s důrazem na světlo, prostor a propojení interiéru s okolní krajinou. Dominantou domu je velkoformátová prosklená čelní stěna v obytném prostoru, která přináší maximální denní světlo a jedinečný výhled na zahradu, jezero či přírodu.
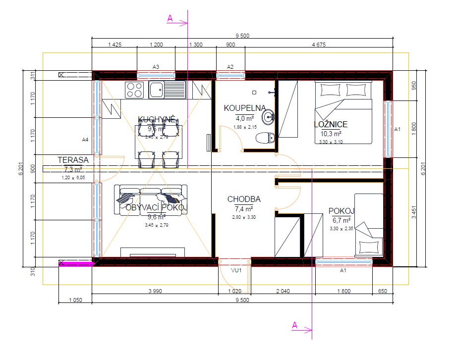
Dispozice 3+kk o užitné ploše cca 49 m² nabízí komfortní zázemí pro rekreaci i celoroční bydlení. Otevřený obývací prostor s kuchyní a jídelnou tvoří srdce domu a díky vysokému stropu do krovu působí vzdušně a nadčasově. Dvě samostatné ložnice zajišťují dostatek soukromí pro rodinu i hosty.
Chata je ideální jako rekreační dům u vody, startovací bydlení, druhá nemovitost na pozemek nebo investiční objekt pro krátkodobé pronájmy (Airbnb). Prefabrikovaný panelový systém ze severského dřeva umožňuje rychlou a kvalitní výstavbu s důrazem na energetickou úspornost a dlouhou životnost.
Cena stavebnice dle specifikace, včetně dopravy na místo v ČR a DPH : 849 000,-Kč
Cena realizace na klíč dle specifikace, včetně DPH 21% : 2 790 000,-Kč
Hlavní přednosti
• panoramatická prosklená čelní stěna
• moderní skandinávský design
• dispozice 3+kk
• vhodné pro celoroční užívání
• rychlá výstavba prefabrikací
• ideální pro rekreaci, bydlení i investici
Dispozice a plocha
• Obývací pokoj + kuchyň: 19,8 m²
• Ložnice: 10,6 m²
• Pokoj / pracovna: 6,9 m²
• Koupelna + WC: 4,2 m²
• Chodba: 6,7 m²
• Technická místnost: 1,0 m²
• Užitná plocha celkem: cca 49 m²
Technické řešení
Konstrukce je tvořena kvalitním panelovým systémem ze severského dřeva Thermowood s důrazem na přesnost výroby a rychlou montáž. Sedlová střecha s falcovanou plechovou krytinou podtrhuje moderní architekturu a zajišťuje dlouhou životnost. Velkoformátová okna v antracitovém provedení doplňují nadčasový vzhled a zvyšují energetickou efektivitu objektu.
Možnosti realizace
• stavebnice pro svépomoc
• hrubá stavba
• realizace na klíč
• možnost individuálních úprav dispozice a prosklení
Dodání prefabrikované stavebnice do 3 měsíců od objednání. Vhodné i pro umístění na rekreační pozemky a jako moderní skandinávské bydlení v přírodě.







